点击上方【大水牛测绘】关注我们一、基站一般架设在已知点上,通过已知坐标反求各类误差影响,然后通过无线电传送这些误差给移动站,从而是移动站迅速获取误差校正,提高定位精度。

点击上方【大水牛测绘】关注我们大家在使用CAD时,有没有注意到CAD的背景颜色呢?普遍颜色都是黑色,所以我们有时就会忽略背景色的作用,若是背景色变成了白色,那么我们的线条就会不清晰,从而导致我们的设计出现错误。若是不小心改变了背景颜色要怎么办呢?

点击上方【大水牛测绘】关注我们GPS 技术的发展已经先进到能在野外实时获取点位厘米级的水平精度的程度。被称为实时动态测量(RTK)的这种 GPS 测量技术正在被国外的规范权威机构确定为地籍测量的一种合适方法。实时动态 GPS 要求至少有两台双频 GPS 接收机两台仪器之间应有无线电遥测通信线路。其中一台接收…

点击上方【大水牛测绘】关注我们外挂电台和内置电台的区别1、外挂电台连接当测区范围比较大的情况,特别是呈带状情况下,由于内置电台覆盖范围小多用外置电台。基站主机与电台和天线连接好开机,用手部连接主机设定协议、差分格式,选择外置电台启动基站模式(已知点设站和未知点设站任选其一)。然后手簿连…

点击上方【大水牛测绘】关注我们按图示断面尺寸乘以柱高以m³计算。柱高按下列规定确定。有梁板的柱高,应自柱基上表面(或楼板上表面)至上一层楼板上表面之间的高度计算。

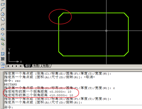
点击上方【大水牛测绘】关注我们不知道大家有没有遇到过这种情况。明明命令没输错啊,为什么画出来的矩形好像被人倒过角一样?
