点击关注 关注我们吧~我们在绘制建筑剖面图时,有的时候需要绘制素土夯实地面,那么该如何操作呢?1、打开用天正建筑打开图形。

点击关注 关注我们吧~WGS1984坐标(通常简称为WGS84)与大地2000坐标(CGCS2000)在多个方面存在显著的区别:两者的提出时间:WGS84是由美国国防部为了适应全球地图编制和空间技术发展的需要,在1984年建立的一种地心坐标系。它是全球定位系统(GPS)的参考构架,是全球性的地理坐标系统。CGCS2000(中国地…

点击关注 关注我们吧~大家都知道AutoCAD如何将Excel表格导入,那么天正CAD要如何导入Excel呢?最简单的方法是从EXCEL选择单元格后按CTRL+C,然后到CAD中CTRL+V,这样会以OLE的形式粘贴,看上去象一张图片,双击可以返回EXCEL进行编辑。这种方式很简单、也很灵活,但打印控制方面会比较困难,而且很不美观,…

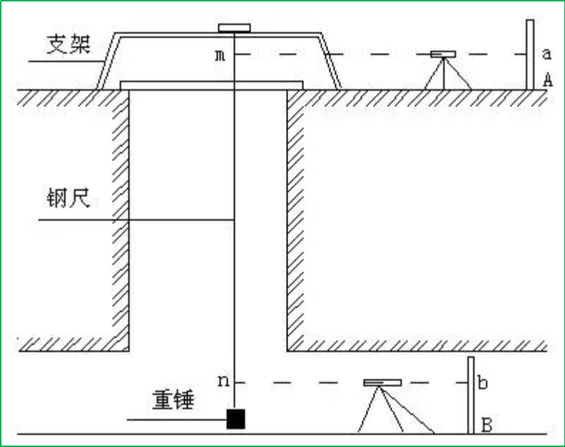
点击关注 关注我们吧~悬挂钢尺法是传递高程的一种方法,当高差较大时,使用水准尺不能测量的时候,采用的一种测量高程的方法。一、测量原理悬挂钢尺法在测量过程中需要加入温度改正和拉力改正后才能够达到较高的精度,是目前高程传递的主要方法,其原理如图1所示:

点击关注 关注我们吧~以TrimbleDiNi03电子水准仪为例,美国天宝公司生产的天宝DiNi03电子水准仪是目前世界上高精度的电子水准仪之一,其各项参数和指标都明显优于其他电子水准仪。在工程测量、沉降观测、高精度水准网观测、地形变观测中,TrimbleDiNi03电子水准仪都能提供高精度的观测结果和可靠的数据。一…

点击关注 关注我们吧~CAD在打印时图纸边缘默认会留有空白,想要去除图框外围的空白边缘,该怎么操作呢?1、如图所示,图框的大小为A4,现在我们要按照图框大小将图纸按1:1打印到A4纸上。(为了便于操作演示,我们将图纸打印成PDF格式)
